供熱管道流量計工作原理
點擊次數:2937 發布時間:2021-12-01 11:03:56
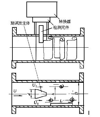
1)供熱管道流量計結構:
供熱管道流量計=傳感器+轉換器

傳感器:
旋渦發生體(阻流體)、檢測元件、儀表表體
轉換器:
前置放大器、濾波整形電路、D/A轉換電路、輸出接口電路、端子、支架和防護罩


2)供熱管道流量計基本原理
供熱管道流量計原理:
流體流經阻擋體或者是特制的元件時,產生了流動振蕩,通過測定其振蕩頻率來反映通過的流量。
渦街產生原理:
當流體流動受到一個垂直于流動方向的非流線形柱體的阻礙時,柱體的下游兩側會發生明顯的旋渦,成為卡門渦列,渦列的形成與流體雷諾數有關。

上一篇:供熱管道流量計如何選型
下一篇:供熱管道流量計安裝要求


